Лучшая on-line библиотека для начинающих и профессионалов!
В качестве примера открытого аквариума рассмотрим аквариум города Лейпцига, где приняли очень рискованный проект создания большого аквариума в центре зоопарка. Его конструкция хорошо видна на рисунке на стр. 243. В 1989 г. аквариум в целом был готов. Таким образом, появилась необходимость оснастить громадное архитектурное сооружение современной техникой. Особенность аквариума заключалась в том, что помещение для зрителей аквариума оборудовали куполообразным сводом, в середине которого расположен планетарий. Таким образом, представляется неповторимый случай рассматривать глубины космического пространства и глубины моря в одном месте. Неизгладимое впечатление! Дальнейшее описание предоставим господину Энгельманну, руководителю аквариуму с благодарностью за конструктивную поддержку:

Схема большого круглого аквариума Лейпцигского зоопарка
«Если посетители зоопарка заходят в наш аквариумный дом, то они имеют полное право на то, чтобы увидеть здесь чистые аквариумы, здоровых рыб и чистую воду». Для этого необходим не только интенсивный и постоянный уход, но также и обширная техника. Посетитель, как правило, едва ли имеет представление, как устанавливают специальное оборудование в помещении для техники. На примере большого аквариума для акул и летающих морских рыб можно было бы рассказать о дорогой фильтровальной технике. В центр нижнего этажа в круглое помещение для посетителей ведет винтовая лестница. Здесь найдется место для множества посетителей. Для посетителя на кресле-каталке предусмотрен выход с понижением, который, конечно же, должен обслуживаться нашим компетентным персоналом.

Аквариум Лейпцигского зоопарка в начале строения
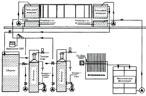
Поднимающаяся вверх винтовая лестница приводит нас на верхний этаж. Большая часть посетителей, захваченная впечатлениями, стоит сначала посередине кольцевидного аквариума и приходит в восторг от плавающих акул. Прежде чем мы подойдем непосредственно к смотровому стеклу, позволим этой атмосфере повлиять и на нас. Пространство, освещенное только подсветкой аквариума, затемнено, и наше внимание привлекают плавающие рыбы: черные акулы, золотые рыбки, королевская макрель, украшенная узкими черными полосами. За стеклянным кольцом смотрового стекла длиной 40 м находится 120 м3 морской воды. Для рыб этот аквариум представляет практически неограниченное пространство для плавания, т.к. по двум направлениям они не сталкиваются со стеклами. Акулы, которые в природе постоянно плавают, чтобы пропускать воду через жабры; морские порхающие рыбы, которым также необходимо большое пространство для плавания, находят здесь идеальные условия. Несколько построек из ракушечника установлено для рыб, привязанных к месту обитания, таких как мурены, каменный окунь. Есть также лабиринты и пещеры, которые необходимы рыбам для благополучного существования. В общей фильтровальной системе, включая большую и кольцевидную камеру для осветленной воды, находится в обороте 100 м3 воды. Производительность насосов такова, что каждый час через фильтровальные установки проходит 80 м3 воды. Из трех мест смотрового аквариума вода свободным течением попадает сначала в сборный резервуар, который находится в подвале.

Посетители находятся в середине аквариума в форме кольца
От него вода подходит к двум большим флотаторам (аэраторам), которые имеют диаметр 100 см и высоту 3,1 м. Флотатор соединен с озонатором, так что при необходимости в аквариумную воду может подводиться озон. Озон повышает окислительно-восстановительный потенциал, который в этой системе постоянно контролируется с помощью электроники. Из сборного резервуара вода попадает в получашу 2,2 м длиной и 2 м шириной, в которой на оси вращаются поставленные в ряд пластины из пластмассы диаметром 2 м. На этих наполовину погруженных в воду пластинах поселяются бактерии, которые окисляют высокотоксичные аммиак и нитриты в относительно безвредные нитраты. Механическое фильтрование происходит при подсоединении к биологическому, мокрому фильтру объемом 10 м3, заполненному коралловым щебнем. Он состоит из двух параллельно расположенных отсеков, через которые проходит половина объема воды. Таким образом, посредством изменения направления движения всего потока в одну камеру другую можно очищать в работающем режиме. При этом гравий можно очищать смесью воды и воздуха. Эту работу можно совмещать с частичной сменой воды, которая проводится, как правило, один раз в месяц. Два насоса с производительностью 60 м3/ч перекачивают очищенную воду в резервуар с осветленной водой, который находится непосредственно под аквариумом. Отсюда она с помощью двух следующих насосов опять транспортируется в кольцевидный аквариум. Все насосы управляются выключателем с поплавком, так что отказ насоса не приводит к авариям. Такой же фильтровальной техникой оснащен панорамный аквариум для коралловых рыб. Все другие аквариумы в зависимости от размеров и вида воды (морская или пресная) оборудованы собственными фильтровальными системами, причем, применяются как устройства, фильтрующие через песок под давлением, так и многокамерные гравийные фильтры с предварительным фильтрованием через фильтровальные маты. Наряду с фильтровальными системами к аквариумной технике относятся также освещение, аэрация, нагрев и охлаждение отдельных аквариумов, установки водоподготовки, дополнительные емкости, а также общие трубопроводы. Так, например, для включения воды и электричества во всех частях аквариума необходимо 10,5 км кабеля и 8 км трубопроводов. Большие, заросшие водорослями, аквариумы с пресной водой подсоединены к центральной установке для дозирования двуокиси углерода, в качестве удобрения, в аквариумную воду.
Этим достигается лучший рост растений при одновременном подавлении нежелательных водорослей. Для развития растений, а также для благополучия водных существ большое значение имеет температура и освещение. Это касается не только интенсивности света, но и его ежедневной длительности. Поэтому длительность дневного освещения и его сила управляются приборами и таймерами. Для больших, представленных для просмотра, аквариумов важно иметь карантинные аквариумы. В Лейпцигском зоопарке установлено четыре таких аквариума. Один карантинный, другой – для разведения тропических морских животных и тропических пресноводных рыб, карантинный аквариум с холодной водой, а также карантинный аквариум для разведения животных террариума. Они служат не только для раздельного размещения вновь прибывающих и отдельных заболевших животных но и для временного показа животных которые не могут показываться в демонстрационном помещении. В дальнейшем здесь происходит разведение МОЛОДНЯКА и целенаправленное увеличение числа определенных видов. Вместе с тем МЫ имеем возможность участвовать в охране природы, в частности, через участие в международной программе получения различных видов. Похожие конструкции, которые используют аэрацию, биологическое фильтрование, озонирование, есть также в аквариуме Берлина, в парке животных в Бохуме, в Хаденбеке, в аквариуме университета города Киль и в других демонстрационных аквариумах внутри страны и за рубежом.»

Кольцевой аквариум с точки зрения человека, ухаживающего за животными
Предыдущая || Следующая || Оглавление