Лучшая on-line библиотека для начинающих и профессионалов!
Правильное освещение для аквариума, в котором содержатся растения, совершенно необходимо. Оно определяется тремя параметрами: во-первых - это яркость, вернее сила света, во-вторых - длительность, в-третьих - спектральный состав. Каждый из этих показателей достаточно важен.
Большинство аквариумных растений - выходцы из тропических областей Земли, где длительность светового дня не зависит от времени года и равна примерно 12 часам. Именно такая продолжительность светового дня наиболее благоприятна для большинства растений.
Обычно любители гидрофитов включают освещение на 10-14 часов в сутки. Однако в каждом конкретном случае этот вопрос должен решаться индивидуально, так как искусственная подсветка зависит от многих показателей.
Слишком короткий световой день приводит к дистрофии растений, из-за того что они не успевают создать достаточного количества необходимых для своего роста веществ; у некоторых растений меняется характер роста.
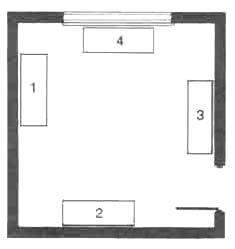
Искусственное освещение должно согласовываться с величиной фонового естественного освещения, которое зависит от размещения аквариума в комнате и ориентации окон.

Схема расположения аквариума в комнате: 1. 2, 3 — правильно; 4 — неправильно
Лучше всего расположить аквариум у боковой стенки в непосредственной близости от окна.

Размещение аквариума у окна
Южное, восточное и юго-восточное направление окон предпочтительно. Прямое солнечное освещение в течение 2-3 часов в день прекрасно влияет на развитие растений и позволяет сократить время искусственной досветки до 6 - 8 часов в день. Искусственное освещение, правильно подобранное, конечно, может заменить естественный свет. Тем не менее при естественном освещении, даже слабом и кратковременном, растения окрашиваются ярче. Кроме того, естественное освещение позволяет сэкономить электроэнергию. Но следует иметь в виду, что дневного света, идущего от окна, для освещения аквариума, стоящего у боковой стенки, как правило, не хватает, если на аквариум не попадает прямой солнечный свет. Дополнительная подсветка для такого аквариума необходима.
Есть еще одно важное обстоятельство, которое надо учитывать при создании искусственного освещения: свет обязательно должен падать сверху. Аквариум без верхней подсветки выглядит значительно менее эффектно.
Осветители должны быть изготовлены надежно, иметь хорошую электроизоляцию, их необходимо прочно укрепить на аквариуме.

Размещение осветителя на аквариуме: неправильно (на покровном стекле); б — правильно (на подставке)
Особо надо остановиться на осветителях для аквариумов, где содержатся крупные плавающие по поверхности воды растения или устроены террасы для болотных растений.

Аквариум с высоким колпаком
Эти аквариумы должны иметь высокие колпаки, чтобы источники света были подняты над поверхностью воды на 20 - 30 см. Такие колпаки целесообразно делать с прозрачной передней стенкой для удобства обзора поверхности воды. Источники света надо прикрывать отражателями, чтобы свет не попадал в глаза наблюдателю.
Каким же должен быть искусственный свет? Прежде всего для каждого аквариума надо определить мощность осветителей.
В руководствах по акваристике существует много вариантов расчета мощности освещения. Исходя из практического опыта, рекомендую ориентироваться на объем аквариума. Для определения мощности источников искусственного света надо рекомендуемую удельную мощность умножить на объем аквариума, выраженный в литрах. Известно, что светоотдача люминесцентных ламп примерно в три раза больше, чем у ламп накаливания, при одинаковой мощности. Поэтому при использовании люминесцентных ламп на 1 л объема необходимо 0,4 - 0,5 Вт, а при освещении аквариума лампами накаливания требуется 1,2-1,5 Вт на 1 л объема.
Самый лучший вариант - это комбинированное освещение: сочетание ламп накаливания с люминесцентными лампами. На схеме показаны осветители для стандартных аквариумов объемом 100 и 200 л.

Схемы расположения ламп в осветителе для аквариума емкостью:
а—100 л; б —200 л
На схеме лампа ЛБУ - 30 мощностью 30 Вт обеспечивает освещение 60л, остальные 40л освещают лампы накаливания 25 - 40 Вт. Освещение двухсотлитрового аквариума обеспечивают две лампы ЛБУ - 30 (примерно на 120 - 150 л) и две лампы накаливания по 40 - 60 Вт.
Предлагаемые схемы являются ориентировочными. Конструирование осветителей - дело творческое, конечно, если для освещения аквариума не используются готовые конструкции. Но в любом случае не следует забывать о том, что осветители должны иметь достаточную мощность и определенный спектральный состав света.
Соотношение ламп накаливания и люминесцентных ламп может быть различным, оно зависит от падающего на аквариум естественного света. Предлагаемые схемы пригодны как для исключительно искусственного освещения, так и для досветки при естественном освещении. При достаточном солнечном освещении досвечивание вечером можно делать только экономичными люминесцентными лампами. Если аквариум размещается у окна в комнате, куда не проникает солнечный свет, лучше делать досветку лампами накаливания, с тем чтобы добавить к свету голубого неба необходимую долю желтых и красных лучей.
Из всех выпускаемых промышленностью ламп накаливания для освещения аквариумов больше всего подходят лампы мощностью 25, 40 и 60 Вт, так как они дают большое количество лучей красно-оранжевой части спектра, особенно необходимых для роста растений. Более мощные лампы в аквариумном хозяйстве используются редко из-за возможности местного перегрева растений, да и спектр их содержит меньше красно-оранжевых лучей.
Необходимо остановиться на криптоновых лампах.
Криптоновая лампа
Это - лампы накаливания мощностью 40, 60, 100 Вт. Они отличаются от обычных ламп уменьшенной колбой грибовидной формы, которая заполнена инертным газом криптоном. Для любителей аквариумных растений важно то, что эти лампы дают больше оранжевых лучей, чем обычные лампы. Для человеческого глаза эта разница практически неощутима.
Люминесцентные лампы имеют много преимуществ по сравнению с лампами накаливания. У них значительно больше светоотдача, более ровный световой поток, сбалансированный спектральный состав света. Они выпускаются разной мощности и различного спектра.
Лампы с большим количеством голубых лучей, имеющие в маркировке букву Д (ЛД, ЛДЦ и т. д.), в акваристике используются сравнительно редко. Голубые лучи необходимы растениям в период цветения и плодоношения в отличие от красно-желтых, стимулирующих рост. Так как семенное размножение растений в аквариуме происходит редко, а хороший рост совершенно необходим, то предпочтение и отдается лампам, в спектре которых преобладают красно-желтые лучи.
Широко применяются для освещения аквариумов лампы теплого дневного света, в маркировке которых есть буква Б: ЛБ, ЛТБ и т. д. Свет, который дают эти лампы, по спектральному составу близок к солнечному, поэтому они больше всего подходят для освещения аквариумов с растениями.
Люминесцентные лампы подключаются к электрической сети через специальный пусковой агрегат (дроссель) и включаются с помощью особого устройства - стартера. При таком способе подключения лампы загораются не мгновенно, пусковые; агрегаты нередко создают шум при работе и довольно громоздки.
В последнее время разработаны системы, позволяющие включать люминесцентные лампы мгновенно, исключающие шум при их работе и регулирующие их световой поток.
Особое внимание следует обратить на применение осветителей, в которых используется люминесцентная лампа с пусковым агрегатом, собранным на полупроводниках, и гасящим сопротивлением в виде лампы накаливания. Кроме упомянутых выше преимуществ у них есть и другие: лампа накаливания, работающая в полмощности, дает дополнительное красно-оранжевое освещение, а коэффициент полезного действия такой системы значительно больше.
Кроме описанных ламп для освещения аквариумов можно использовать фитолампы. Это специальные лампы для теплиц и оранжерей. Иногда они бывают в розничной продаже. Однако из-за большой мощности эти лампы редко применяются для освещения аквариумов.
Предыдущая || Следующая || Оглавление